Bleulandweg 3
Bleulandweg 3
Bleulandweg 3
Bleulandweg 3
Bleulandweg 3
Bleulandweg 3
Bleulandweg 3
Bleulandweg 3
Bleulandweg 3
Bleulandweg 3
Bleulandweg 3
Bleulandweg 3
Bleulandweg 3
Bleulandweg 3
Bleulandweg 3
Bleulandweg 3
Bleulandweg 3
Bleulandweg 3
Bleulandweg 3
Bleulandweg 3

Bleulandweg 3

Gouda

€ 455,- p/m

Interesse?

Neem contact met ons op!

Neem contact met ons op

Omschrijving

Bleulandweg 3 – Gezondheidscentrum Gouda

Turn-key zorgunits in een toekomstbestendig gezondheidscentrum, naast het Groene Hart Ziekenhuis.
Aan de Bleulandweg 3 in Gouda wordt momenteel gewerkt aan de transformatie van een bestaand gebouw tot een modern en duurzaam gezondheidscentrum. Het pand ondergaat een volledige metamorfose en wordt ontwikkeld tot een hoogwaardige zorglocatie waar samenwerking tussen zorgverleners centraal staat.
Het gezondheidscentrum wordt gerealiseerd in directe nabijheid van het Groene Hart Ziekenhuis en biedt ruimte aan huisartsen, paramedische zorgverleners, GGZ en overige eerstelijns- en zorggerelateerde functies. Inmiddels is een groot deel van het gebouw verhuurd. Voor de resterende ruimtes zijn wij op zoek naar passende zorgpartijen die zich willen vestigen binnen dit sterke zorgcollectief.

BEREIKBAARHEID
Gelegen op een goed bereikbare en centrale locatie in Gouda. Het object kenmerkt zich door de uitstekende bereikbaarheid en de gunstige ligging nabij belangrijke uitvalswegen en openbaar vervoer. Hierdoor is de locatie bijzonder aantrekkelijk voor zowel medewerkers als bezoekers.
Per auto
Binnen enkele autominuten bereikt u de rijkswegen A12 en A20, waardoor steden als Rotterdam, Utrecht en Den Haag snel en eenvoudig bereikbaar zijn.

Per openbaar vervoer
De bereikbaarheid met het openbaar vervoer is uitstekend. Bushaltes en het NS-station Gouda bevinden zich op enkele minuten loopafstand van het object. Hierdoor is de locatie zeer aantrekkelijk voor zowel medewerkers als bezoekers.

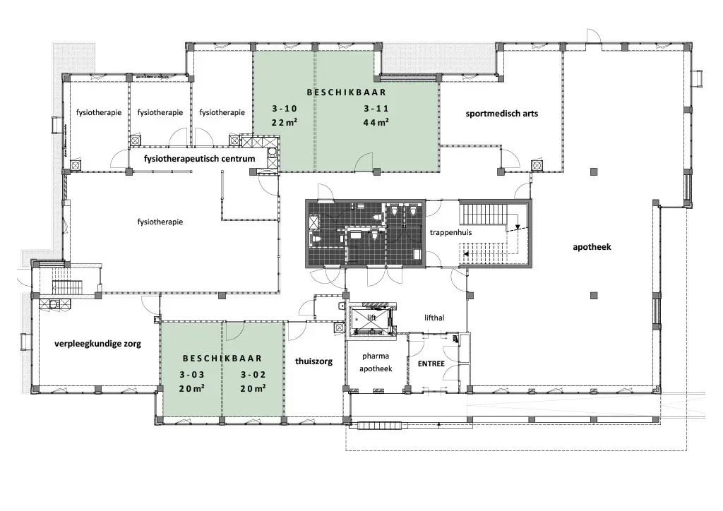
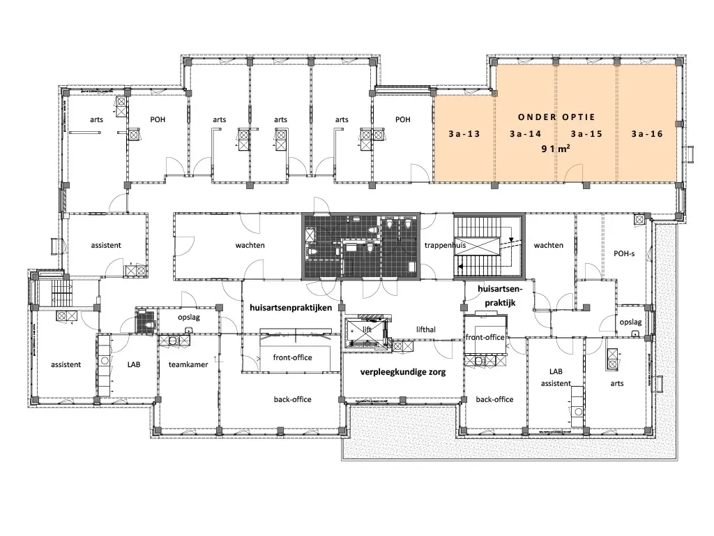
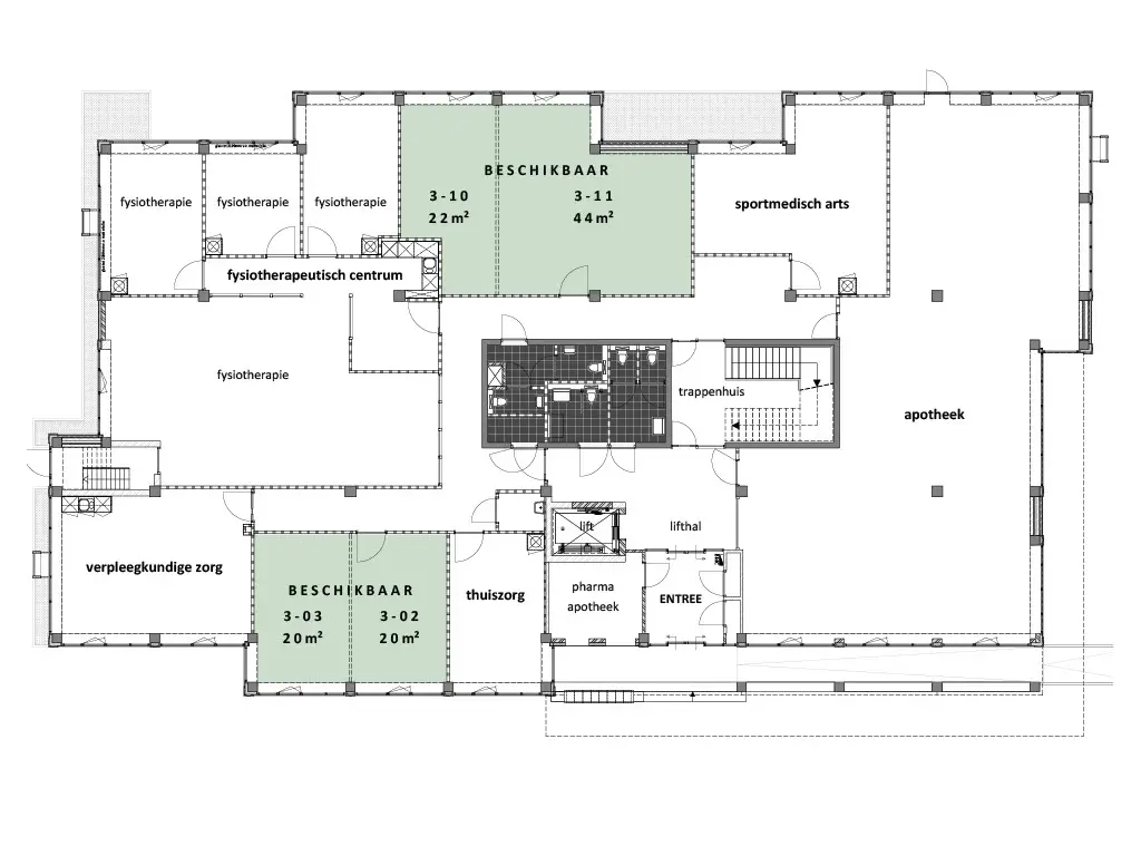
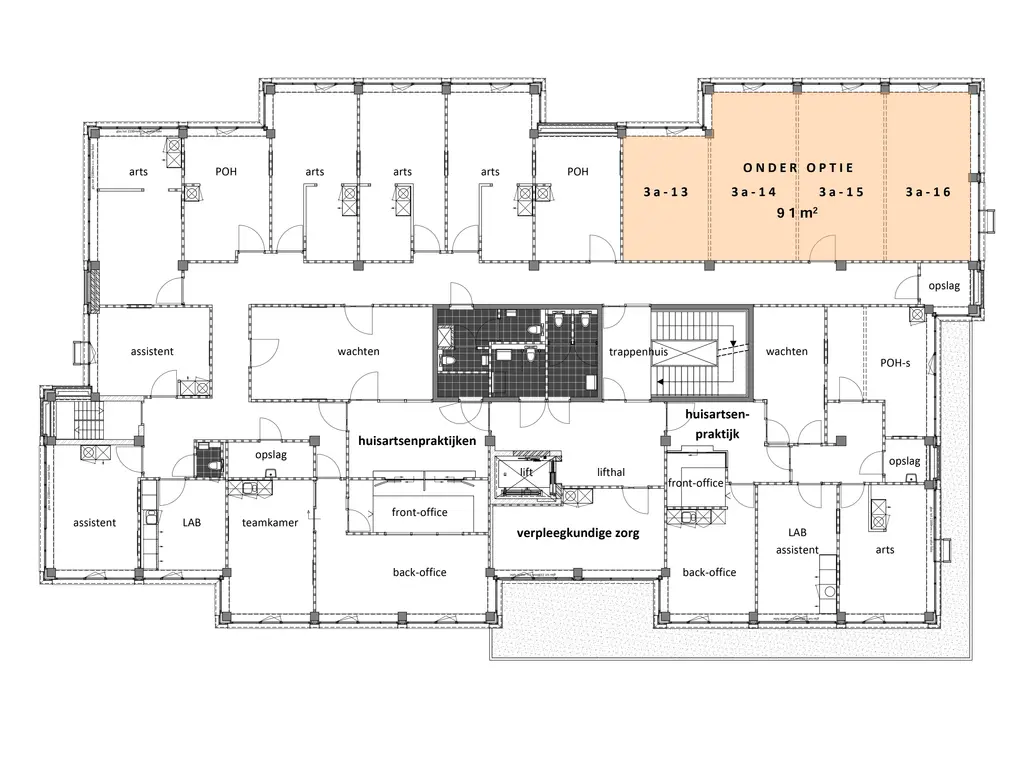
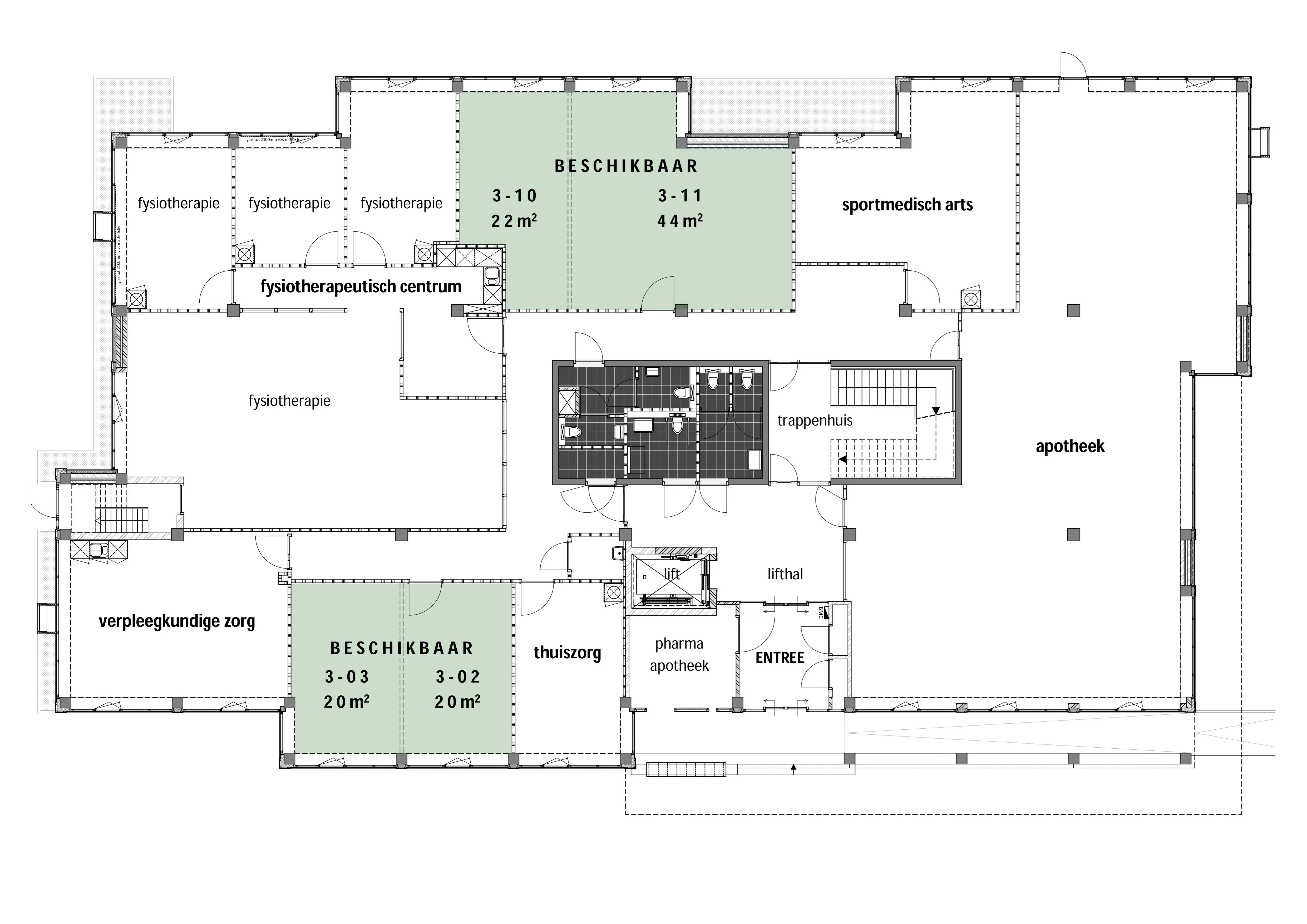
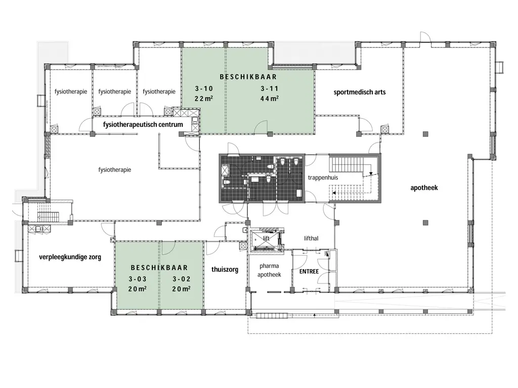
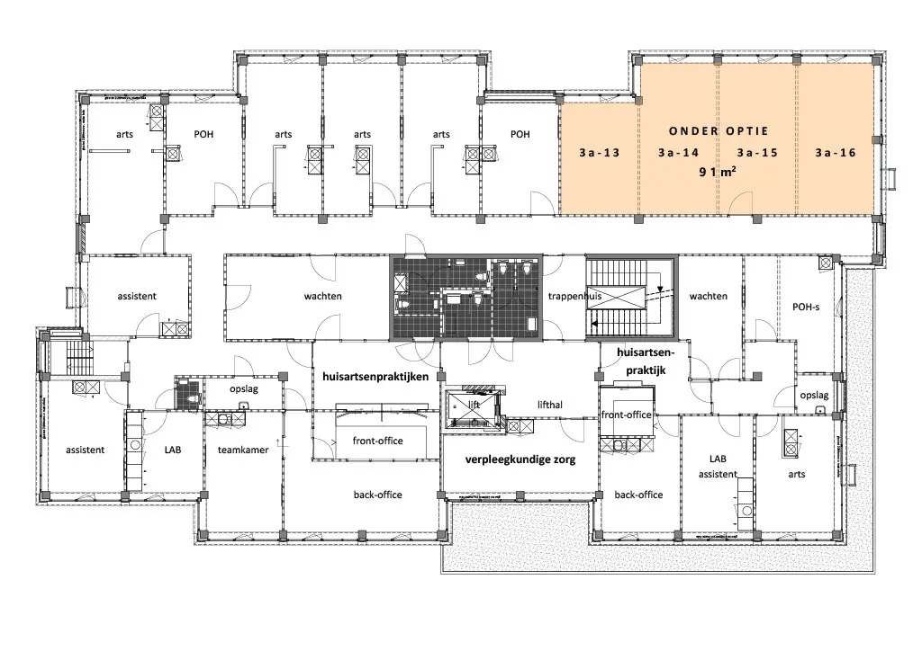
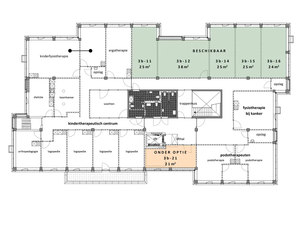
VLOEROPPERVLAKTE
Binnen het gezondheidscentrum zijn diverse turn-key zorgunits beschikbaar, variërend in grootte. De huurprijzen zijn gebaseerd op het aantal m² BVO inclusief aandeel algemene ruimten. Op de plattegronden zijn de VVO-meters weergegeven van de feitelijke ruimtes.
Begane grond
unit Oppervlakte
3.02 29 m²
3.03 29m²
3.10 31 m²
3.11 62 m²

Tweede verdieping
Unit Oppervlakte
3b.11 44 m²
3b.12 66 m²
3b.14 44 m²
3b.15 44 m²
3b.16 42 m²
3b.21 28 m²

OPLEVERNIVEAU
De zorgunits worden turn-key opgeleverd conform het Programma van Eisen (PvE).
De algemene ruimten worden volledig afgewerkt en het gebouw is volledig toegankelijk voor mindervaliden. Het gebouw beschikt onder andere over een brancardlift en toiletvoorzieningen op iedere verdieping.

KADASTRALE GEGEVENS
Gemeente: Gouda
Sectie: H
Nummer: 2395

GEBRUIK EN DOELGROEP
Het gezondheidscentrum is bestemd voor:
• huisartsen;
• paramedische zorgverleners (zoals fysiotherapie, ergotherapie, logopedie);
• GGZ en overige eerstelijnszorg;
• overige zorg- en zorggerelateerde maatschappelijke functies.
Verhuur is uitsluitend mogelijk aan partijen die passen binnen het bestaande huurdersbestand. Toetsing aan eventuele concurrentie- en exclusiviteitsafspraken met zittende huurders maakt onderdeel uit van het verhuurproces.

PARKEREN
Het gebouw beschikt over circa 54 parkeerplaatsen op eigen afgesloten terrein, bereikbaar via een slagboom.
Parkeren is inbegrepen in de huur en bestemd voor gebruikers van het gezondheidscentrum.

OPLEVERNIVEAU
De zorgunits worden turn-key opgeleverd conform het Programma van Eisen (PvE).
De algemene ruimten worden volledig afgewerkt en het gebouw is volledig toegankelijk voor mindervaliden.
Het gebouw beschikt onder andere over een brancardlift en toiletvoorzieningen op iedere verdieping.

HUURPRIJS
Vanaf € 455,- per maand te vermeerderen met BTW.
Indien de BTW niet kan worden verrekend dan zal de huurprijs met een nader vast te stellen bedrag worden verhoogd.

SERVICEKOSTEN
€ 40,- per m² BVO per jaar, te vermeerderen met BTW.
(o.a. elektra, water, onderhoud installaties, schoonmaak algemene ruimten, afvalafvoer, groenonderhoud, onderhoud parkeerterrein en 5% administratiekosten).

HUURPRIJSAANPASSING
Jaarlijks voor het eerst één jaar na datum ingebruikname, zal de huurprijs worden aangepast op basis van de wijziging van het maandindexcijfer volgens consumentenprijsindex (CPI), 2015=100, reeks alle huishoudens.

ZEKERHEIDSSTELLING
Een bankgarantie ter grootte van een betalingsverplichting van drie maanden huur en servicekosten te vermeerderen met de wettelijke omzetbelasting.

HUURTERMIJN
Huurtermijnen: 3, 5 of 10 jaar

VERLENGINGSTERMIJN
Nader overeen te komen.

OPZEGTERMIJN
Nader overeen te komen.

OVERIGE CONDITIES
Huurovereenkomst op basis van het standaardmodel van de Raad voor Onroerende Zaken (ROZ).

AANVAARDING
Verwachte oplevering: Q3 2026
Huurstart: vanaf oplevering

VOORBEHOUD
Elke transactie behoeft de nadrukkelijke goedkeuring van eigenaar.

DISCLAIMER
Al het bovenstaande betreft informatie omtrent de verhuur van dit adres. De informatie is met zorg samengesteld, maar voor de juistheid ervan kan door Bij Abram Bedrijfsmakelaardij geen aansprakelijkheid worden aanvaard noch aan de vermelde gegevens enig recht worden ontleend. Nadrukkelijk is vermeld dat deze informatieverstrekking niet als een aanbieding of offerte mag worden beschouwd.
Lees meer

Kenmerken

Overdracht

Huurprijs
€ 455,- p/m
Status
beschikbaar
Aanvaarding
in overleg

Bouw

Hoofdbestemming
bedrijfsruimte
Bouwjaar
1978

Oppervlakten en inhoud

Perceeloppervlakte
2.245 m²

Plattegronden

Afspraak maken?

Vul ons contactformulier in en wij nemen zo snel mogelijk contact met je op.