Raam 280
Raam 280
Raam 280
Raam 280
Raam 280
Raam 280
Raam 280
Raam 280
Raam 280
Raam 280
Raam 280
Raam 280
Raam 280
Raam 280
Raam 280
Raam 280
Raam 280
Raam 280
Raam 280
Raam 280
Raam 280
Raam 280
Raam 280

Raam 280

Gouda

verhuurd

Ook bedrijfspand succesvol verkopen of verhuren? Neem dan contactmet ons op

Neem contact met ons op!

Omschrijving

TE HUUR
Multifunctionele bedrijfsruimte te huur in het historisch centrum van Gouda. De bedrijfsruimte met een verhuurbaar vloeroppervlak van 356 m² maakt onderdeel uit van een karakteristiek monumentaal pand en is onder andere geschikt voor sociaal-/maatschappelijke voorzieningen, kantoor, galerie, recreatie en dienstverlening. Ook bedrijfsactiviteiten tot en met milieucategorie 2 zijn toegestaan, te denken valt aan groothandel of productie/assemblage.

LOCATIE
Het object is gelegen aan De Raam, in het historische centrum van Gouda, nabij diverse uitvalswegen. Op korte afstand bevindt zich het bus- en treinstation van Gouda.

BEREIKBAARHEID
Per auto
Goede bereikbaarheid, de Raam is verbonden met omliggende wegen rondom het centrum van Gouda, die een goede verbinding geven met provinciale- en snelwegen.
Per ov
Gelegen op circa 1,5 km van station Gouda en op slechts 500 meter van de dichtstbijzijnde bushalte.

VLOEROPPERVLAKTE
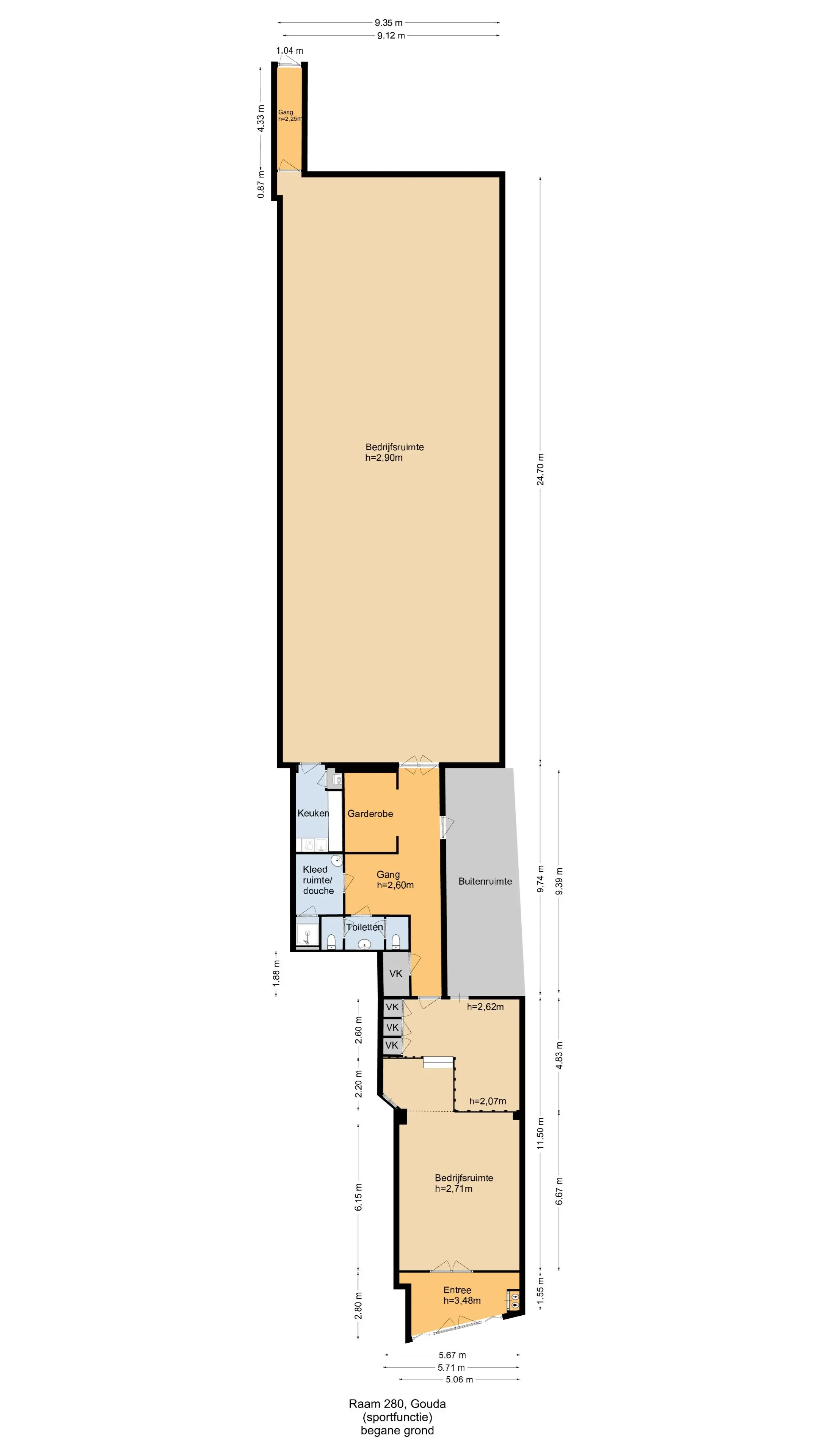
De totale vloeroppervlakte van het gebouw bedraagt 356 m²
Verdieping Metrage (in m² v.v.o.)
Entree, gang en opslagruimten ca. 70 m²
Bedrijfsruimte ca. 286 m²

KADASTRALE GEGEVENS
Gemeente Gouda, Sectie D, nummer 3559 en 3539 A-3
Perceeloppervlakte 391 m²

De Vereniging van Eigenaren is actief.

BESTEMMING
Bestemming: 'gemengd'. De voor 'Gemengd' aangewezen gronden zijn bestemd voor o.a.
a) bedrijfsactiviteiten tot en met milieucategorie 2;
b) kantoren;
c) maatschappelijke voorzieningen;
d) publieksgerichte dienstverlening;
e) recreatieve voorzieningen;
f) galerie;
g) wonen;
h) bij wonen behorende toegangen en bergingen;
i) bij niet-woonfuncties behorende werkplaatsen en praktijk-, kantoor- en opslagruimten;

PARKEREN
parkeermogelijkheid op de openbare weg (betaald parkeren).

VOORZIENINGEN
De ruimte op de begane grond is onder meer voorzien van:
• entree middels openslaande deuren (totaal 3 deuren);
• brandslanghaspels;
• keuken voorzien van een aansluiting voor een vaatwasmachine, spoelbak en afzuigkap;
• cv-ketel (bouwjaar 2010);
• geluidsisolatie tot ca 87 decibel;
• binnenplaats;

INDELING
Globale (huidige) indeling:
• entree, gang en opslagruimten (ca. 70 m²)
• patio;
• toiletgroepen;
• garderobe;
• zaal met toegang tot keuken (ca. 290 m²)

De bedrijfsruimte is onlangs (2025) volledig opgeknapt en wordt 'as is' (casco) verhuurd.

HUURPRIJS
€ 2.450,- per maand, vrij van BTW.

HUURPRIJSAANPASSING
Jaarlijks voor het eerst één jaar na datum ingebruikname, zal de huurprijs worden aangepast op basis van de wijziging van het maandindexcijfer volgens consumentenprijsindex (CPI), 2015=100, reeks alle huishoudens.

BETALINGEN
Huur per maand vooruit.

ZEKERHEIDSSTELLING
Bankgarantie ter grootte van drie maanden huur.

HUURTERMIJN
5 jaar, korter bespreekbaar.

VERLENGINGSTERMIJN
Nader overeen te komen.

OPZEGTERMIJN
Nader overeen te komen.

OVERIGE CONDITIES
Huurovereenkomst op basis van het standaardmodel van de Raad voor Onroerende Zaken (ROZ).

AANVAARDING
In overleg.

VOORBEHOUD
Elke transactie behoeft de nadrukkelijke goedkeuring van eigenaar.

BTW-STATUS
Over de huurprijs wordt geen BTW in rekening gebracht.

DISCLAIMER
Al het bovenstaande betreft informatie omtrent de verhuur van dit adres. De informatie is met zorg samengesteld, maar voor de juistheid ervan kan door Bij Abram Bedrijfsmakelaardij geen aansprakelijkheid worden aanvaard noch aan de vermelde gegevens enig recht worden ontleend. Nadrukkelijk is vermeld dat deze informatieverstrekking niet als een aanbieding of offerte mag worden beschouwd.
Lees meer

Kenmerken

Overdracht

Huurprijs
verhuurd
Status
verhuurd
Aanvaarding
in overleg

Bouw

Hoofdbestemming
maatschappelijkvastgoed
Bouwjaar
1906

Energie

Energielabel
A

Oppervlakten en inhoud

Perceeloppervlakte
391 m²

Cultureleinstelling

Oppervlakte
356 m²

Plattegronden

Locatie

Downloads

Afspraak maken?

Vul ons contactformulier in en wij nemen zo snel mogelijk contact met je op.